
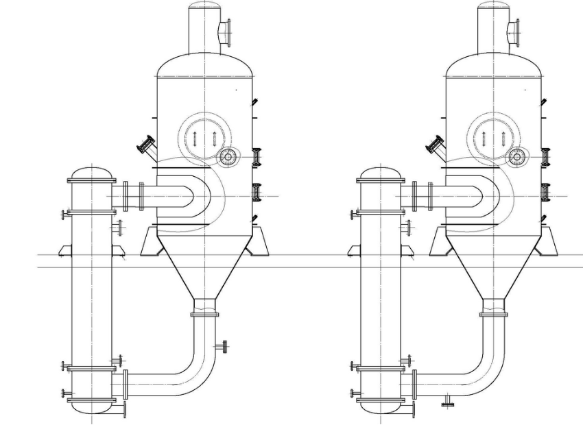
上个礼拜,常州市春来制药机械有限公司成功开发出厂内首个自主研发的污水废水处理设备——“废水蒸发器”,突破了高废盐废水的技术瓶颈,实现了废水零排放和蒸发器清洁生产技术的创新。
废水蒸发器主要来用于电力行业、采矿生产、石化行业和煤化工生产过程及垃圾渗透液废水中。这类废水具有产生范围广、排放量大、含盐量高、腐蚀性强和污染严重等优点。它必须经过严格的处理后才能排出,而且没有回收价值,因此它的治疗成本往往很高。高盐废水一般采用嗜盐微生物生化技术、物理化学技术、海水淡化技术、加热蒸发结晶技术等技术处理。据了解,常州市春来制药机械有限公司废水蒸发器采用一种新型的优势效应反应器技术,通过高磁效应和高压电场效应使水分子发生变形,获得高效蒸发和高效结晶。最后,将废水中的盐转化为水蒸气和残渣。冷源蒸发器可自动运行,具有显著的防腐效果。它可以实现重金属资源的回收,节约大量的生产成本,实现技术突破。
作为生产厂家的废水蒸发协会的成员,常州市春来制药机械有限公司致力于解决污水排放问题,如高盐废水、特殊工业废水、高效浓缩和化学物质液体的分离等。和加拿大的南洋理工大学、日本的宝田、日本的三菱丽阳、上海斯内普蹲等知名大学,企业有着密切的战略合作。
所谓的废水蒸发机械蒸汽再压缩循环蒸发技术,根据物理原理,同样量的物质,从液体到气体过程,都需要吸收一定量的热能。当物质从气态转变为液体时,它释放出同样数量的热量。根据这一原理,在蒸发器处理废水时,提供了蒸发废水所需的热能,然后在蒸汽冷凝和冷凝冷却时释放热能。在操作过程中,无潜热损失。在运行中消耗的只是泵、蒸汽泵和控制系统消耗的电能,这些系统驱动蒸发器中的废水、蒸汽和凝结水循环和流动。为了防止蒸发器被废水腐蚀,保证设备的使用寿命,蒸发器的主体和内传热管通常采用先进的钛合金制造。其使用寿命为30年以上。
公司研发的废水蒸发器单机废水处理量由20吨/天起至2800吨/天。如果需要处理的废水量大于单机最大处理量,可以按装多台蒸发器处理。
常州市春来制药机械有限公司在同行中技术处于领先位置,可以说每个用户提出的要求是不同的,我们会尽量满足用户的要求。没有最好只有更 好是我们公司的产品宗旨。我们专业制造生产空心桨叶干燥机,尤其在微型空心桨叶干燥机上面,走在全国的前列,并且申请了国家专利!我公司管理严谨,为您提供废水蒸发器设备以及提供固废干燥机知识技术咨询,欢迎来电洽谈合作咨询!

